Drawing details of apartment plan dwg autocad software file
Description
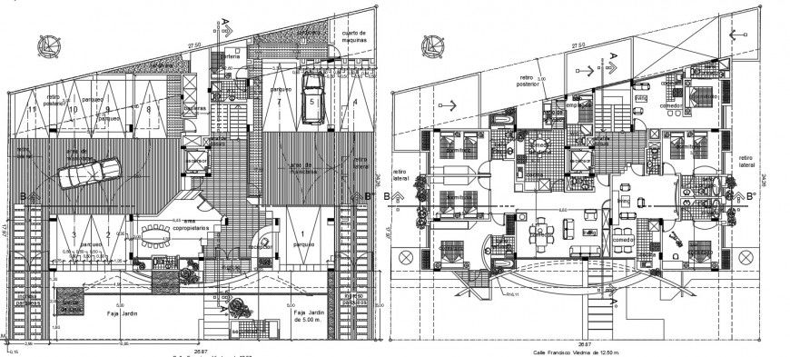
Drawing details of apartment plan dwg autocad software file that shows work plan drawings details of the apartment along with floor level details and furniture layout details in-building parking space details boundary wall details section line details also included in drawings.
Uploaded by:
Eiz
Luna
